冷板式液冷空調方案
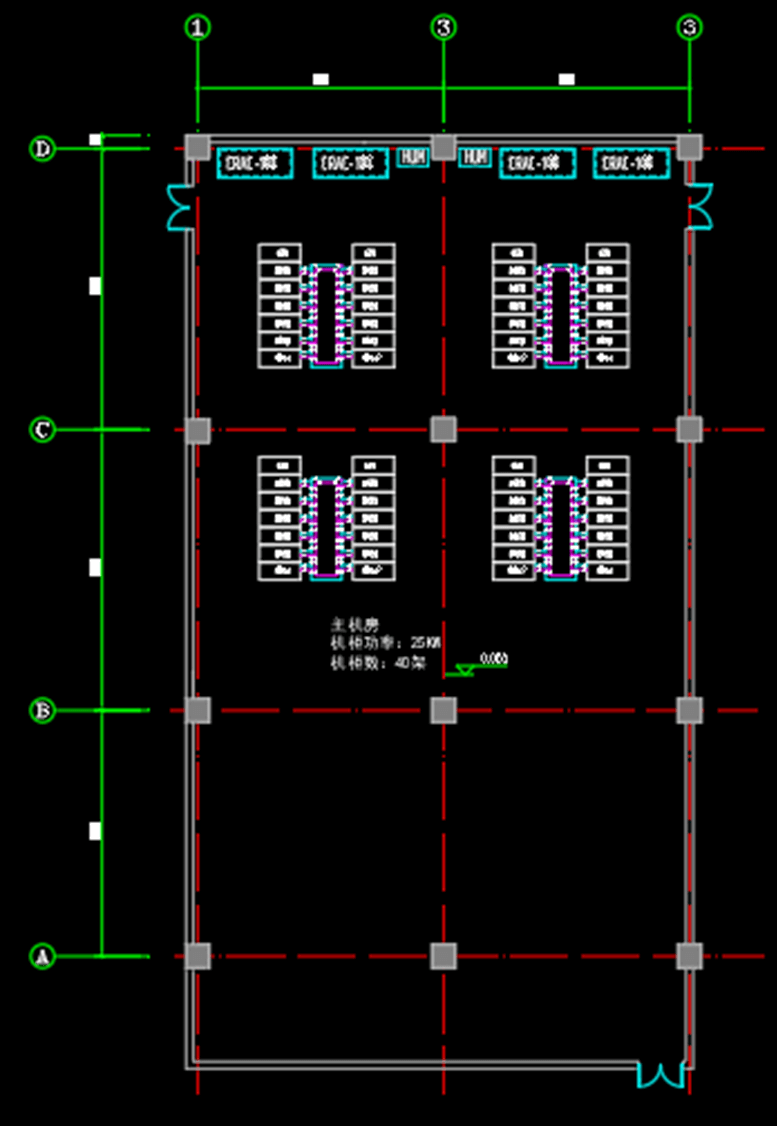
根據設計方案部署4個相同的雙排微模塊,并在每個機柜處增加2根分集水器manifold(支路數根據服務器數量確定),機柜底部開孔,并在安裝manifold的一邊側板上增加固定件及孔位,機房設置靜電地板,凈空高度建議不少于600mm。該方案布置方案如下圖:


冷板式液冷空調方案原理圖
冷板式液冷空調方案具體新增空調設備明細如下:

冷板式液冷空調方案具體新增配電設備明細如下:

機柜配電調整匯總:

注:變壓器、UPS、低壓柜的數量及選型不變。
冷板液冷布置方案空調配電調整匯總:

注:空調專用變壓器、UPS、低壓柜數量及選型是否調整,需根據所帶其他負荷綜合考慮。
高密機房改造實施注意事項

1.在進行改造之前,務必進行充分的規劃和評估,確保設備和電力供應能夠滿足需求,并且不會引起其他問題。
2.在進行機柜改造和設備安裝時,確保遵循安全操作規程,避免對其他設備或人員造成傷害。
3.在進行網絡連接時,確保網絡布局合理,并進行必要的安全措施,以保護數據中心免受潛在的網絡威脅。
4.在測試和調試時,需仔細檢查每個機柜和微模塊通道的工作情況,確保設備能夠正常運行。
5.建立定期的維護和管理程序,確保設備的可靠性和性能,并及時處理可能出現的故障。
相關新聞更多